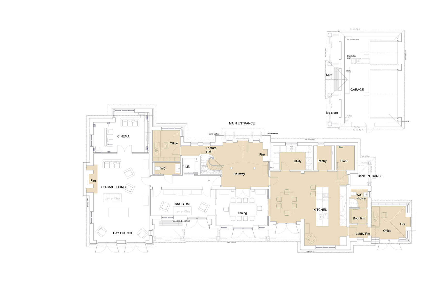
This project began as a major refurbishment of an existing 1950 heavily extended dwelling on a site that demanded a better resolution. It quickly progressed to a demolition and New build. Our initial response was well received by the client to create an imposing , but well-crafted traditional Arts & Crafts styled dwelling that maintained a sense of ‘Home’ running throughout the internal spaces internally. Our Appointment for a Full service - RIBA Stage 1-6 , began on site in late 2020 and progressed to a completion May 2022.
Long Common House (Private Client) . . .
Home
Portfolio
Domestic Extensions
Grove Cottage
Glenridge Lodge
Stanley Crescent
Cider Mill Farm
Commercial
Gate Street Barn
Kennet Wharf
Odney
Residential
Kent House
Long Common House
Copsum Lane
Icklingham Road
Oxshott Rise
Brixton Road
Expertise
Contact