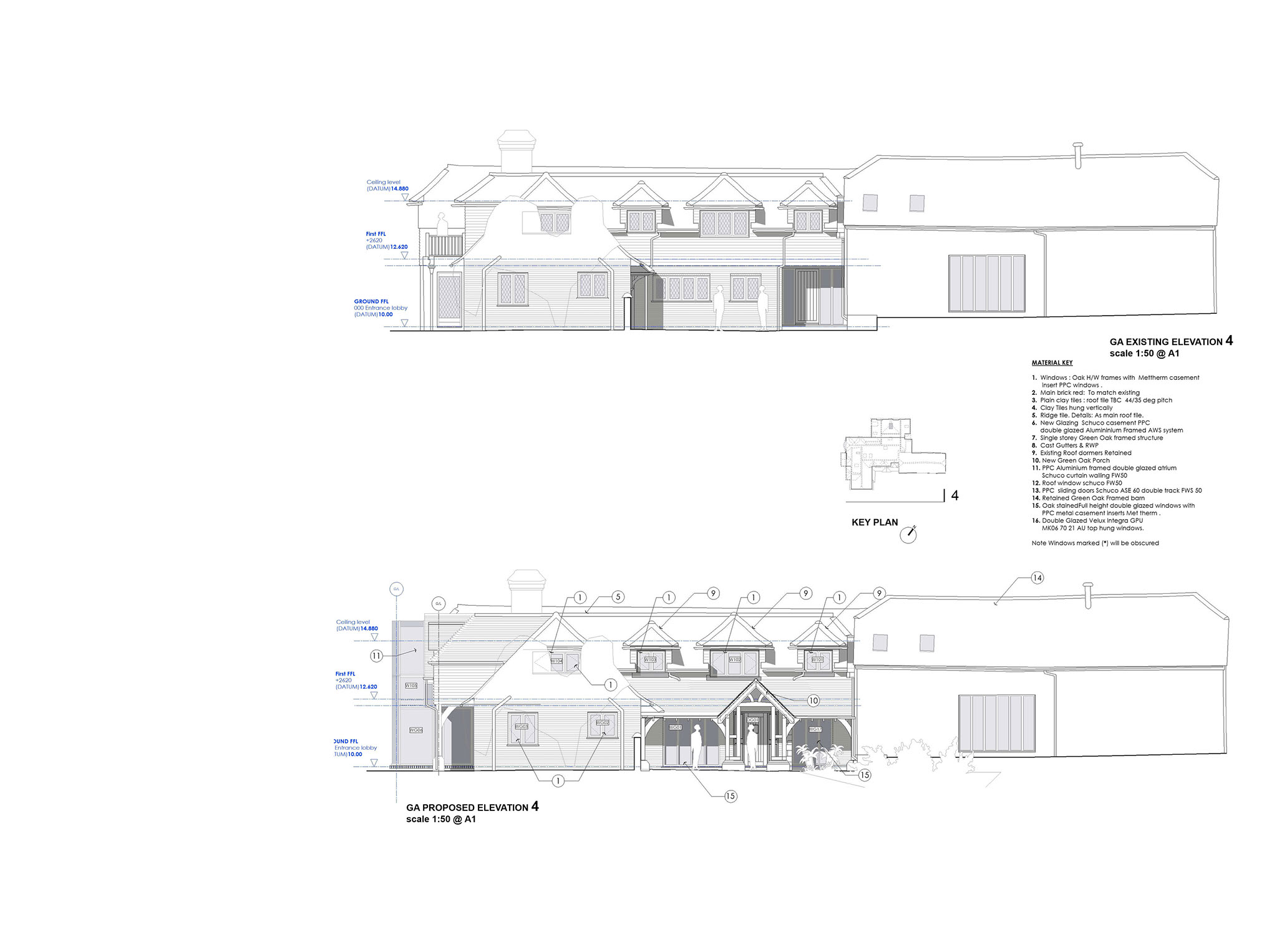
A large detached houses which has been completely re branded with the addition of 2 contemporary extensions contrasting with the existing vernacular facades. The internal layout has benefited by these additions, giving the house a much needed sense of light and connection to the well maintained garden spaces. New Kitchens and the provision of a feature glass framed staircase were key features of this project. Our service bean in 2019 with initial Planning Applications running through to project completion in 2022.
Kent House (Private Client) . . .
Home
Portfolio
Domestic Extensions
Grove Cottage
Glenridge Lodge
Stanley Crescent
Cider Mill Farm
Commercial
Gate Street Barn
Kennet Wharf
Odney
Residential
Kent House
Long Common House
Copsum Lane
Icklingham Road
Oxshott Rise
Brixton Road
Expertise
Contact